
不锈钢自动排气阀产品介绍:
不锈钢自动排气阀主要应用于暖通空调系统,往往安装在制高点或弯头等处,以排除管道中多余气体、提高管道路使用效率及降低能耗。不管是在系统刚加水运行(系统刚运行时,有大量的气体排出。)还是在系统压力过高需适度排水卸压时,都能可靠运行。
不锈钢自动排气阀产品特点:
1.性能可靠。排气阀的排气机制可靠,在出厂前每只阀均通过排气实验和压力密封实验。
2.只排气,不排水。汽、水分离盘设计采用特殊的结构,排气时不排水。
3.只要系统有压力,排气阀就会连续不断的排气。
不锈钢自动排气阀技术参数:
最大工作压力:10bar
最高工作温度:110℃
螺纹接口尺寸:3/8"-1″
暖气片排气阀的结构:
阀体:不锈钢
浮球:热塑低密度PP
不锈钢自动排气阀零件材料:
|
ARVX微量排气阀
|
||||
|
名称
|
阀盖、阀体
|
浮球
|
杠杆、杠杆架
|
塞头
|
|
材质 |
球墨铸铁
|
304不锈钢
|
304不锈钢
|
合成橡胶BUNA-NVITOL
|
|
AVAX自动排气阀
|
不锈钢
|
|||
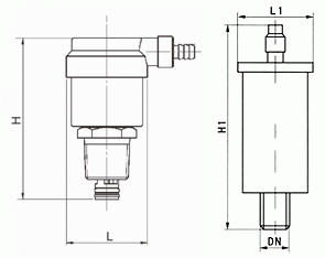
不锈钢自动排气阀外形结构图:
不锈钢自动排气阀连接尺寸:
|
DN
|
10(3/8")
|
15(1/2")
|
20(3/4")
|
25(1")
|
|
L1
|
47
|
47
|
47
|
47
|
|
H1
|
113
|
113
|
113
|
113
|
|
L2
|
102
|
102
|
102
|
102
|
|
H2
|
127
|
127
|
127
|
127
|
咨询:不锈钢全自动排气阀